LaScierie
AVIGNON – 2020
TYPE PROJET : Tiers Lieux Culturel
TYPE MISSION : PC + PRO partiel
SURFACE CONSTRUITE : 1184 m² surface de plancher existant – Extension de 208 m²
BUDGET : NC
REMARQUES : Intégration de dispositifs de production d’énergie renouvelables (photovoltaïque et production d’hydrogène) aux abords de monuments historiques et sur site ERP.
Projet pilote conventionné par l’ADEME
LE PROJET
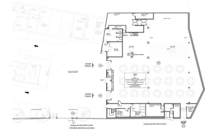
Ce tiers lieux culturel s’insère dans la friche industrielle d’une ancienne scierie, située aux portes d’Avignon. Le site est partagé entre un lieu de spectacles, un commerce d’alimentation bio, et des ateliers associatifs. Notre mission a consisté à changer la destination des locaux de cet ancien entrepôt en tiers culturel, abritant des représentations de spectacles vivants sous différentes configurations de salle : gradin, cabaret, spectacles debout. La salle, ERP de troisième catégorie peut accueillir jusqu’à 700 personnes. Outre la mise en place des dispositifs d’accès et de sécurité, le projet architectural prévoit l’amélioration énergétique du lieu.
Le site conjugue plusieurs difficultés : plan de prévention du risque inondation du Rhône impliquant la création d’une zone refuge et d’équipement de sécurité spécifique, proximité des abords des remparts nécessitant discrétion et soin dans les dispositifs architecturaux.
Au-delà des activités culturelles, LaScierie est un prototype préfigurant le projet Ecobio porté par le même Maître d’Ouvrage. Ainsi le bâtiment est pourvu de 30m² de panneaux photovoltaïques en toiture dont la mise en place évoque une verrière soulignant le faîtage de la halle. L’énergie solaire est stockée sous forme d’hydrogène produit sur site. Cette énergie alimente ensuite un data center vert, ainsi que des véhicules en autopartage. La multiplicité des programmes et leur imbrication sur un seul espace font de LaScierie un lieu particulièrement intéressant.












